DT

    FELLINI RESIDENCES    |   

    MURATTI HÖFE    |   

    FERATTTI OFFICES    |   

    RUDOLF NELSON HAUS    |   

    UNDER THE STARS    |   

    VILLA CAEMILLA    |   

    BARBARA PLAZA    |   

    WEISSE TAUBE    |   

    LIVING IN FRIEDENSTAL    |   

    BLUESTAR DATACENTER    |   

    LIETZENBURGER STRASSE 79/81    |   

    LANDSBERGER ALLEE 315    |   

    KLEISTSTRASSE 1    |   

    VAN CAEM PARK    |   

Apartmentbuilding 

Berlin City West



Apartmentbuilding – Lietzenburger Straße 79/81


Completion:


Location:


Architect:

being planned


Lietzenburger Straße 79/81, 10719 Berlin


Marc Kocher

1/5 Lietzenburger Straße 79/81 – Front View

2/5 Lietzenburger Straße 79/81 – Livingroom

3/5 Lietzenburger Straße 79/81 – Bathroom

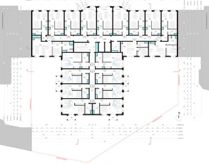
4/5 Lietzenburger Straße 79/81 – Ground floor

5/5 Lietzenburger Straße 79/81 – 3rd floor

This website use cookies. Please read our privacy policy for details.